Справочник проектировщика-электрика жилых и гражданских зданий
Глава VIСЕТИ ОСВЕЩЕНИЯ
§ 1. Определение расчетной нагрузкиРасчетные нагрузки групповой осветительной сети общедомовых помещений жилых зданий (лестничных клеток, подвалов, чердаков, котельных, красных уголков и т. п.), а также жилых помещений общежитий следует определять по светотехническому расчету с коэффициентом спроса, равным единице. Для сетей с люминесцентными лампами потери в пускорегулирующих аппаратах следует принимать в размере 20% от мощности ламп. Расчетная мощность сети для питания штепсельных розеток должна приниматься с учетом мощности присоединяемых злектроприемникив.
Расчетная мощность групповой сети штепсельных розеток (Рр) в общежитиях определяется по формуле
где п — число штепсельных розеток в группе.
При проектировании групповой сети освещения квартир расчетную мощность следует определять по следующим наименьшим нормам удельных расчетных нагрузок: 12 вт/м2 — для освещения жилых комнат и кухонь; 8 вт/м2 — для освещения остальных помещений общего пользования квартир; при этом в каждом помещении следует принимать не менее одной лампы мощностью 25 вт; 30 — 40 вт/мг — бытовая нагрузка жилых комнат и кухонь.
Расчетные нагрузки для питающих линий квартир, а также на вводе в жилые дома определяются исходя из удельной нагрузки на одну квартиру и числа квартир, питаемых данной линией, с учетом соответствующего коэффициента одновременности, принимаемого по табл. 91.
. Удельные расчетные нагрузки на одну квартиру принимаются: для зданий с газовыми плитами — 1 кет, с плитами на твердом топливе 1,2 кет и со стационарными электрическими плитами в районах, где имеется избыток электроэнергии, — 4 кет.
В отдельных случаях при определении расчетных нагрузок для жилых домов в. безлесных районах, где стационарные плиты не
§ I. Определение расчетной нагрузки 209
Таблица 91
Значения коэффициентов одновременности для различного количества квартир, питаемых одной линиейЧисло квартир
| квартир |
1 |
5 |
10 |
20 |
30 |
40 |
60 |
100 |
200 |
400 |
600 |
| С газовыми плитами и плитами на твердом топливе |
1 |
0,7 |
0,62 |
0,5 |
0,45 |
0,43 |
0,42 |
0,41 |
0,39 |
0,37 |
0,36 |
| С алектричес-ними плитами . |
1 |
0,62 |
0,47 |
0,4 |
0,35 |
0,33 |
0,3 |
0,28 |
0,26 |
0,24 |
0,23 |
устанавливаются, а по местным условиям приготовление пищи ведется с использованием электронагревательных приборов,, может быть принята удельная нагрузка на одну квартиру 2,5—3 квт.
Приведенные удельные расчетные нагрузки учитывают осветительную н бытовую нагрузки квартир, а на вводе в здание также осветительную нагрузку общедомовых помещений, и не учитывают силовую нагрузку от общедомовых потребителей и нагрузку встроенных в жилые здания торговых и коммунально-бытовых предприятий. Не учтено также кондиционирование воздуха, электрические водонагреватели и электрическое отопление.
Удельные расчетные нагрузки рассчитаны для средней жилой площади квартир 30 м2. При средней площади квартир, отличающейся от указанной более чем на +/- 5 м2, удельная расчетная нагрузка на одну квартиру принимается увеличенной (или соответственно уменьшенной), но не более чем на 20%-
При реконструкции жилых зданий с многокомнатными квартирами большой площади удельные нагрузки от освещения и бытовых электроприборов для расчета питающей сети (в вт на квадратный метр оплачиваемой жилой площади) принимаются следующие:
Для зданий с газовыми плитами: 20
лестничные питающие линии (стояки) внутридомовые питающие линии 18
на вводе в дом 15
Для зданий с плитами на твердом топливе:
лестничные питающие линии (стояки) 25
внутридомовые питающие линии 22
на вводе в дом 18
14 1645
210 Глава VI. Сети освещения
Расчетные нагрузки питающих линий электроосвещения общежитий определяются по установленной мощности с учетом коэффициента спроса 0,7 и коэффициента мощности 0,9—1.
Расчетная нагрузка осветительной сети гражданских зданий определяется исходя из установленной мощности ламп, найденной светотехническим расчетом, путем умножения ее на следующие значения коэффициента спроса;
них до балконов и окоп должны быть не менее 1,5 м.
Наружная электропроводка по крышам жилых зданий не допу-
скается. Незащищенные изолированные провода, доступные для при-
косновения, рассматриваются как голые. Расстояния от проводов,
пересекающих пожарные проезды и пути для перевозки грузов, до
поверхности земли должны быть не менее 6 м, в непроезжей части —
не менее 3,5 м.
Расстояния между проводами как по горизонтали, так и по вер-
тикали должны быть: при пролете до 6 м — не менее 100 мм} при
пролете более 6 м — не менее 150 мм.
Прокладка проводов в стальных трубах по наружным стенам
должна выполняться при помощи муфт с резьбой и уплотнением,
если возможно попадание влаги непосредственно на трубу. Если же
исключено попадание влаги, то допускается прокладка бумажно-
металлических и тонкостенных труб только с муфтами, но с обяза-
тельной покраской. Прокладка труб в земле, как правило, не до-
пускается.
Транзитные бронированные силовые кабели напряжением до
1000 в, питающие электроэнергией другие здания, допускается про-
§ 2.Электропроводки 339
кладывать по подвалу или техническому подполью. Кабели должны
быть проложены в постоянно доступных местах открыто или в кана-
лах. В подвалах эти кабели должны быть проложены в коридорах,
выделенных для прокладки коммуникаций.
Питание наружного освещения должно производиться или не-
посредственно от трансформаторных подстанций или от вводов осве-
тительной сети в здания. Управление наружным освещением в этом
случае не зависит от внутреннего освещения. Система управления
наружным освещением должна обеспечивать его отключение в тече-
ние не более 3 минут из возможно ограниченного числа мест.
При проектировании управления освещением следует:
а) в помещениях с односторонним боковым естественным осве-
щением предусматривать включение светильников рядами, парал-
лельными ряду окоп;
б) в помещениях, посещаемых эпизодически и имеющих несколь-
ко нормальных входов, предусматривать управление освещением по
коридорной схеме, с установкой переключателей у каждого основно-
го входа;
в) в крупных помещениях предусматривать возможность отдель-
ного включения небольшой части светильников, создающих по
всей площади освещенность, необходимую для уборки поме-
щения;
г) в небольших помещениях с двумя:четырьмя светильниками,
за исключением коридоров и лестниц, предусматривать разбивку све-
тильников на два выключателя;
д) выключатели для светильников, установленных в сырых
и особо сырых помещениях, по возможности выносить в смежные
помещения с лучшими условиями среды;
е) выключатели для душевых устанавливать вне последних
и в достаточном удалении от двери в душевую, например у входа
в преддушевую; выключатели санузлов, как правило, размещать
перед дверью;
ж) выключатели для светильников у входа в здание с кругло-
суточным пребыванием персонала размещать внутри здания, а в ос-
тальных случаях — вне его;
и) отключающие аппараты в цепях, питающих светильники, уста-
новленные непосредственно на чердаках, должны оборудоваться вне
чердаков;
к) выключатели устанавливаются около дверей со стороны двер-
ной ручки на высоте около 1,5 м от пола во всех помещениях, кроме
школ, детских учреждений и помещений для пребывания детей, где
они устанавливаются па высоте 1,8 м\
л) управление общим освещением зрительных залов в клубах,
актовых залов учреждений и учебных заведений и кинозалов должно
осуществляться из 2 мест: из кинопроекционной и со сцепы; в зри-
тельных залах, рассчитанных более чем па 400 человек, устанавли-
вается плавное регулирование освещения при помощи темнителей
для постепенного включения и выключения; при числе мест менее
400 допускается включение и выключение освещения тремя-четырьмя
ступенями; при этом последняя ступень должна создавать освещен-
ность не более 20°/о нормируемой. Управление аварийным, освеще-
340 Глава IX. Конструктивное выполнение электрических устройств
нием кинозала желательно осуществлять, кроме мест, указанных
выше, еще с пульта микшера в зрительном зале.
Автоматическое управление освещением (как наружным, так
и внутренним) может быть осуществлено с помощью фотореле
ФРМ-62А изготовления Свердловского опытного завода треста Мон-
таж автоматик а.
Фотореле ФРМ-62А предназначено для автоматического вклю-
чения и выключения освещения при заданной освещенности в пре-
делах 1—500 ли. Напряжение питания — 220 в переменного тока.
Фотореле представляет собой комплект из заключенных г. общий
корпус блока магнитного усилителя и выходного реле МКУ-48 и от-
дельно— датчика освещенности с фотосопротивлением ФСК-Г1. Мак-
симально допустимая длина кабеля между усилителем и датчиком —
100 м. При мощности осветительной установки до 4 кет контакты
выходного реле включаются непосредственно в линию, питающую
установку. При большей мощности осветительной установки кон-
такты выходного реле используются для управления контактором
(КЛ), величина которого выбирается в соответствии с мощностью
установки. Соответствующие схемы приведены на рис. 47.

Рис. 47. Схемы автоматического управления освещением
Показанные на рисунке рубильники и предохранители могут быть
заменены автоматами. Для того чтобы случайные вспышки света
(например, свет молнии или фар проезжающего автомобиля) не
вызывали отключения осветительной установки, последовательно
с фотореле нужно включить реле времени с выдержкой 20 сек.
В приведенных на рис. 47 схемах может также быть использо-
вано фотореле типа ФР-2, выпускаемое с 1965 г. Минским электро-
техническим заводом.
При компоновке питающей сети следует:
а) избегать как излишнею дробления, так и чрезмерного укруп-
нения линий;
§ 2, Электропроводки 341
б) для многоэтажных зданий применять систему питания щит-
ков верхних этажей стояками (располагая щитки по возможности
на одной вертикали) с разводкой питающей сети по подвалу пли
первому этажу;
в) широко применять магистральную схему питания щитков;
г) выбирать для питающих липни кратчайшую трассу, учитывая
также удобство монтажа и обслуживания; желательно совмещать
трассы питающих осветительных и силовых липни;
д) одной линией можно питать несколько стояков, при этом в жи-
лых зданиях высотой более 5 этажей па ответвлении к каждому
стояку должен устанавливаться отключающий аппарат;
е) электродвигатели рабочего и резервного пожарных насосов
должны питаться отдельными линиями от ТП пли главного распре-
делительного щита;
ж) при отсутствии резерва двигатель пожарного насоса дол-
жен питаться двумя линиями, одна из которых должна быть при-
соединена непосредственно к щиту подстанции пли главному рас-
пределительному щиту;
з) одной общей линией следует питать не более четырех лиф-
тов, расположенных в разных лестничных клетках; при установке
в лестничной клетке двух лифтов, каждый из них должен питаться
от разных линий, при этом число лифтов, присоединяемых к каждой
линии, не ограничивается;
и) на вводно-распределптельпом устройстве домов в 3 этажл
и выше следует предусматривать установку помехоподавляющпх
конденсаторов типа КЗ емкостью 0,5 мкф па каждую фазу; конден-
саторы типа КЗ емкостью 0,5 мкф на каждую фазу следует уста-
навливать также на щитке в машинном отделении лифта.
При компоновке групповой сети следует:
а) учитывать требования в отношении предельной силы тока
групп, равномерного распределения нагрузок по фазам;
б) для основных проходных помещений (лестницы, коридоры
и т. п.) предусматривать отдельные группы;
в) в квартирах до трех комнат питать штепсельные розетки от
групп, общих со светильниками; предусматривать не одну, а две
групповые липни, присоединяя к каждой светильники и штепсельные
розетки части помещений, например расположенных с одной стороны
коридоров;
г) выбирать для групповой сети кратчайшую трассу, учитывая
при этом расположение сантехнических и других трубопроводов,
могущих помешать прокладке сетей;
д) линии, идущие в одном направлении, рекомендуется прокла-
дывать по общей трассе, даже если это связано с незначительным
увеличением длины проводов;
е) электробытовые приборы мощностью не более 1,5 кет разре-
шается присоединять к осветительной сети кварт! р. При большей
мощности должна предусматриваться самостоятельная групповая
линия.
При проектировании следует избегать применении излишнего
числа типоразмеров проводов па данном объекте, что должно учи-
тываться при выборе их марок и сечении. Однако при выполнении
342 Глава IX. Конструктивное выполнение электрических устройств
проводки трубчатыми проводами или кабелями ЛВРГ, ЛНРГ и т. п.
целесообразнее па участках местного увеличения числа проводов
(к штепсельным розеткам и от выключателей) применять соотвег- .
ствующее количество двух- и трехжильных проводов.
Ниже приводятся некоторые сведения о применяемых в электро-
п роводках установоных изделиях.
В зависимости от условий среды используются нормальные
и герметические выключатели. Обычные выключатели с поворотной
или перекидной рукояткой и кнопочные выпускаются на ток б—10 а
для открытой и скрытой проводки. Кроме того, очень большое рас-
пространение получили, особенно в жилых зданиях, блоки для
утопленного монтажа, состоящие из двух выключателей и одной
штепсельном розетки очень компактного исполнения, размером
80X130X30 мм, и блоки, состоящие из трех выключателей и одной
штепсельной розетки, размером 80X170X30 мм. Предпочтительна
также установка одного сдвоенного выключателя вместо двух нор-
мальных. Па ток больше 10 а применяются пакетные выклю-
чатели.
Патроны для ламп накаливания применяются подвесные с резь-
бой под ниппель (М-10 —для патронов с резьбой Р-27 и М-16-—
для патронов с резьбой Р-40), подвесные фарфоровые или пластмас-
совые с ушком (только Р-27), прямые потолочные и наклонные
степные (только Р-27).
Штепсельные двухполюсные розетки для открытой и скрытой
проводки в нормальном и герметическом исполнении изготовляются
на ток до 10 а. В сетях 127—220 в следует устанавливать ро-
зетки без предохранителей, а в сетях 12—36 в — с предохраните-'
/IЯ МП.
В последнее время для управления освещением лестниц жилых
домов нашли применение автоматические выключатели типа AB-2f
имеющие А выдержку времени на отключение 1—2 мин.
Эти автоматические выключатели устанавливаются на каждом
этаже жилого дома; при нажатии кнопки включается на 1—2 мин
освещение, необходимое для прохода по лестнице, после чего авто-
мат выключает освещение; если требуется более длительное освеще-
ние лестницы, необходимо вторично нажать кнопку автомата. Кроме
того, в вестибюле лестницы уста ц л вливается обычный выключатель,
позволяющий управлять освещением лестницы помимо автоматов.:
Светильники, установленные перед входом на -лестницу и в тамбуре,
имеют отдельные выключатели (рис. 48).
При автоматическом управлении освещением лестничных кле-
ток аварийное освещение и освещение у посадочных площадок лиф-
тов должно быть включено постоянно,
Для присоединения передвижных приемников, требующих за-
земления, двух- и трехполюспые розетки должны соответственно
иметь дополнительный третий илц четвертый контакт.
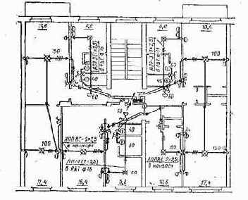
Кабели в зданиях прокладывается с креплением скобами, t при
большом числе параллельно прокладываемых кабелей — по конст-
рукциям пли в каналах. В помещениях с нормальной средой приме-
няется сухая разделка кабеля. На рис. 49 показан пример выгилне-
ни:! групповой сети жилого дом а.
§ 2. Электропроводки 343

-!- Кнопочный бымюча- о -Лампа на площадке © -Лампа в тамбуре
тель ДВ-2 лестницы
о -Лампа при входе • cf- Выключатель освещения лестницы
Рис. 48. Управление освещением лестниц жилого дома

Рис. 49. План групповой сети жилого дома. Проводка выпол-
нена скрыто в коробах, штрабах и каналах с учетом возмож-
ности замены проводов
344 Глава IX. Конструктивное выполнение электрических устройств
Таблица 151
Вес меди, алюминия и стали в проводах на 1000 м длины
|
Сечение в мм2 |
Вес в кг |
Сечение в мм2 |
Вес в кг |
Сталь |
|||||
|
меди |
алюминия |
диаметр в мм |
Сечение в мм2 |
Вес в кг |
|||||
|
меди |
алюминия |
||||||||
|
0,75 1 1,5 2.5 4 6 10 16 |
7 9 13 22 36 53 89 142 |
2 2,7 4 6,8 11 16 27 44 |
25 35 50 70 95 120 150 185 |
222 312 445 623 845 1070 1345 1680 |
68 95 137 190 266 323 41-9 516 |
3 3,5 4 5 6 - - - |
- - - - - 25 35 50 70 |
73 86 98 154 222 207 290 395 630 |
Главный распределительный щит, от которого происходит рас-
пределение электроэнергии по всему дому, целесообразно устанавли-
вать в специальном помещении — в подвале или в первом этаже.
Щитовое помещение, расположенное в подвале, должно иметь на-
дежную гидроизоляцию.
В районах, подверженных затоплению, вводные устройства, ••
главные распределительные щиты, пункты и щитки должны уста-'
на вливаться выше уровня затопления.
Для одно- и двухэтажных жилых зданий, не имеющих общих
лестничных клеток, вводные устройства могут устанавливаться в со-
ответствующем исполнении снаружи зданий на стене.
При размещении вводных устройств и главных распределитель-
ных щитов, пунктов и щитков не в специальных помещениях долж-
ны соблюдаться следующие требования:
а) устройства должны быть расположены в удобных, всегда
доступных для обслуживания местах, например на лестничных клет-
ках, в сухих подвалах, в отапливаемых тамбурах;
б) аппараты должны быть установлены в металлическом шкафу
или нише капитальной стены, снабженных запирающимися двор-
цами; рукоятки управления отключающих аппаратов не должны
выводиться наружу или должны быть съемными;
в) щиты, щитки, пункты и вводные устройства должны уста-
навливаться па расстоянии не менее 0,5 м от трубопроводов (водо-
провод, отопление, катализация и т, п.), газопроводов и газовых
счетчиков.
Щитовые помещения не допускается располагать под уборными,
ванными комнатами, кухнями и санузлами.
§ 3. Щиты и щитки 345
Таблица 152
Рекомендуемый сортамент прокатной стали
|
Угловая |
Полосовая |
Круглая |
||||||
|
Размер в мм |
Вес 1 м в кг |
Размер в мм |
Вес 1 м в кг |
Диаметр в мм |
Сечение в мм2 |
Вес 1 м в кг |
||
|
20X3 20X4 25X3 25X4 28X3 32x3 32X4 36X3 36X4 40X3 40X4 45X3 45X4 45X5 50X3 50X4 50X5 63X4 63X5 63X6 |
0,89 1,15 1,12 1,46 1,27 1,46 1,91 1,65 2,16 1,85 2,42 2,08 2,73 3,37 2,32 3,05 3,77 3,9 4,81 5,72 |
20X4 20X5 20X6 22X4 22X5 22X6 25X4 25X5 25X6 28X4 28X5 28X6 30X4 30X5 30X6 32X4 32X5 32X6 36X4 36X5 36X6 40X4 40X5 40X6 |
0,63 0,79 0,94 0,69 0,81 1,04 0,79 0,98 1,18 0,88 1,10 1,32 0,94 1,18 1,41 1,01 1,25 1,50 1,13 1,41 1,69 1,26 1,57 1,88 |
5 5,6 6 6,3 7 8 9 10 11 12 13 14 15 16 17 18 19 20 |
20 25 28 31 38 50 64 79 95 113 133 154 177 201 227 254 284 514 |
0,15 0,19 0,22 0,24 0,3 0,39 0,5 0,62 0,75 0,89 1,04 1 21 1,39 1,58 1,78 2 2,23 2,47 |
||
|
Листовая |
||||||||
|
Толщина в мм |
Вес в 1 м2 в кг |
|||||||
|
0,2 0,25 0,3 0,4 0,5 0,6 0,7 0,8 1,0 1,1 1,2 1,4 1,6 1,8 2,0 |
1,57 1,96 2,35 3,14 3,92 4,71 5,49 6,28 7,85 8,63 9,42 11,00 12,56 14,13 15,7 |
|||||||
|
Швеллерная |
||||||||
|
50X32 65X36 80X40 100X46 120X52 140X58 160X64 |
4,84 5,9 7,05 8,59 10,4 12,3 14,2 |
|||||||
|
Тип распределительного пункта |
Номер исполне-ния |
Количество аппаратов в шт. |
Габариты в мм |
Вес в кг |
|||||||||||||||||
|
Уплотненное защищенное |
Навесное защищенное исполнение с уплотнением |
Стоячее защищенное исполнение с уплотнением |
Ввод |
Автоматы на линиях |
Ширина |
Высота |
Глубина |
||||||||||||||
|
А-3120 |
А-3130 |
А-3140 |
А-3131 |
А-3163 |
А-3120 |
А-3130 |
|||||||||||||||
|
ПР-9111 ПР-9111 ПР-9111 ПР-9121 ПР-9121 ПР-9121 ПР-9121 ПР-9121 ПР-9121 ПР-9121 ПР-9121 ПР-9121 ПР-9121 |
ПР-9212 ПР-9212 ПР-9212 ПР-9222 ПР-9222 ПР-9222 ПР-9222 ПР-Э222 ПР-9222 ПР-9222 ПР-9222 ПР-9222 ПР-9222 |
— — — — — — — — — — — — — |
101 102 103 104 105 106 107 108 109 110 111 112 113 |
— — — — — — — — — — — — — |
— — — — — — — — — — — — — |
— — — — — — — — — — — — — |
— 3 6 — 3 6 9 12 — 35 6 9 13 |
2 1 — 4 3 2 1 — 6 — 4 3 2 |
— — — — — — — — — — — — — |
— — — — — — — —— — — — — |
635 635 635 845 845 845 845 845 845 845 845 845 845 |
720 720 720 930 930 930 930 930 930 930 930 930 930 |
260 260 260 260 260 260 260 260 260 260 260 260 260 |
60 60 60 75 75 75 75 75 75 75 75 75 75 |
|||||||
|
ПР-9121 ПР-9121 ПР-9131 ПР-9131 ПР-9131 ПР-9131 ПР-9131 ПР-9131 ПР-Э131 ПР-9131 ПР-9131 ПР-9131 ПР-9131 ПР-9131 ПР-9131 ПР-9131 ПР-9131 ПР-9131 ПР-9131 ПР-9131 ПР-9131 ПР-9131 |
ПР-9222 ПР-9222 ПР-9232 ПР-9232 ПР-9232 ПР-9232 ПР-9232 ПР-9232 ПР-9232 ПР-9232 ПР-9232 ПР-9232 ПР-9232 ПР-9232 ПР-9232 ПР-9232 ПР-9232 ПР-9232 ПР-9232 ПР-9232 ПР-9232 ПР-9232 |
— — — — — — — — — — — — — — — — — — — — — — |
114 115 116 117 118 119 120 121 122 123 124 125 126 127 128 129 130 131 132 133 134 135 |
— — — — — — — — — — — — — — — — — — — — - — |
— — — — — — — — — — — — — — — — — — — — — — |
— — — — — — — — — — — — — — — — — — — — — — |
15 18 — 3 6 9 12 15 18 21 24 — 3 6 9 12 15 18 21 24 27 30 |
1 — 8 7 6 5 4 3 2 1 — 10 9 8 7 б 5 4 3 2 1 — |
— — — — — — — — — — — — — — — — — — — — — — |
— — — — — — — — — — — — — — — — — — — — — — |
845 845 1055 1055 1055 1055 1055 1055 1055 1055 1055 1055 1055 1055 1055 1055 1055 1055 1055 1)55 1055 1055 |
930 930 1140 1140 1140 1140 1140 1140 1140 1140 1140 1140 1140 1140 1140 1140 1140 1140 1140 1140 1140 1140 |
260 260 260 260 260 260 260 260 260 260 260 260 260 260 260 260 260 260 260 260 260 260 |
75 75 95 95 95 95 95 95 95 95 95 95 95 95 95 95 95 95 96 95 95 95 |
Для линий, питающих многоламповые
люстры, число ламп не ограничивается. При питании люминесцент-
ных ламп трехфазными линиями без нулевого провода (при соеди-
нении ламп в треугольник) защита линии должна выполняться толь-
ко трехполгосными автоматами. При использовании однополюсных
автоматов или предохранителей люминесцентные лампы должны
питаться только двухпроводными линиями. Это исключает возмож-
ность последовательного включения ламп при отключении автомата
или предохранителя одной из фаз.
Аппараты защиты следует устанавливать во всех местах сети,
где сечение проводника уменьшается (по направлению к местам
потребления электроэнергии), или в местах, где это необходимо для
соблюдения селективности, а также в местах присоединения защи-
щаемых проводников к питающей линии.
Соответственно аппараты защиты должны устанавливаться:
в местах разветвления питающих линий; в начале питающих стоя-
ков, обслуживающих этажные щитки; в местах ответвления вводов
в здание от воздушных питающих линий, если расчетный ток ввода
не превышает 20 а (при большем токе защитные аппараты уста-
навливаются в здании, непосредственно у ввода); при питании по
5. Выбор защитных и пусковых аппаратов 235
магистральной схеме более трех щитков — в местах ответвления от
магистрали, а при трудной доступности этих мест — непосредственно
у щитков; с обеих сторон счетчиков электроэнергии, непосредственно
включаемых в сеть; аппараты защиты перед счетчиками квартир
должны устанавливаться вне последних.
Длина незащищенного участка ответвления (от питающей линии
до места установки защитного аппарата) должна быть не более 3 м
как при прокладке проводов в стальных трубах, так и при открытой
прокладке проводов по несгораемым поверхностям и в непожаро-
и невзрывоопасных помещениях.
Для ответвлений, выполняемых в труднодоступных местах (на-
пример, на большой высоте), аппараты защиты допускается уста-
навливать на расстоянии до 30 м от точки ответвления в удобном
368 Глава IX, Конструктивное. выполнение электрических устройств
Продолжение табл.162
|
Тип распределительного пункта |
Номер исполне-ния |
Количество аппаратов в шт. |
Габариты в мм |
Вес в кг |
|||||||||||||||||
|
Уплотненное защищенное |
Навесное защищенное исполнение с уплотнением |
Стоячее защищенное исполнение с уплотнением |
Ввод |
Автоматы на линиях |
Ширина |
Высота |
Глубина |
||||||||||||||
|
А-3120 |
А-3130 |
А-3140 |
А-3131 |
А-3163 |
А-3120 |
А-3130 |
|||||||||||||||
|
ПР-9121 ПР-9121 ПР-9121 ПР-9131 ПР-9131 ПР-9131 ПР-9131 ПР-9131 ПР-9121 ПР-9121 ПР-9121 ПР-9131 ПР-9131 ПР-9131 ПР-9131 |
ПР-9222 ПР-9222 ПР-9222 ПР-9232 ПР-9332 ПР-9232 ПР-9232 ПР-9232 ПР-9222 ПР-9222 ПР-9222 ПР-9232 ПР-9232 ПР-9232 ПР-9232 |
— — — — — — — — — — — — — — — |
201 202 203 204 205 206 207 208 301 302 303 304 305 306 307 |
1 I 1 1 1 1 1 1 — — — — — — — |
— — — — — — — — 1 1 1 1 1 1 1 |
— — — — — — — — — — — — — — — |
— 3 6 — 3 6 9 12 — 3 6 — 3 6 9 |
2 1 — 4 3 2 1 — 2 1 — 4 3 2 1 |
— — — — — — — — — — — — — — — |
— — — — — — — — — — — — — — — |
845 845 845 1055 1055 1055 1055 1055 845 845 845 1055 1055 1055 1065 |
930 930 930 1140 1140 1140 1140 1140 930 930 930 1140 1140 1140 1140 |
260 260 260 260 260 260 260 260 260 260 260 260 260 260 260 |
75 75 75 95 95 95 95 95 75 75 75 95 95 95 95 |
|||||||
§ 3. Щиты и щитки 369
|
Тип распределительного пункта |
Номер исполне-ния |
Количество аппаратов в шт. |
Габариты в мм |
Вес в кг |
|||||||||||||||||
|
Уплотненное защищенное |
Навесное защищенное исполнение с уплотнением |
Стоячее защищенное исполнение с уплотнением |
Ввод |
Автоматы на линиях |
Ширина |
Высота |
Глубина |
||||||||||||||
|
А-3120 |
А-3130 |
А-3140 |
А-3131 |
А-3163 |
А-3120 |
А-3130 |
|||||||||||||||
|
ПР-9131 ПР-9131 ПР-9131 ПР-9131 ПР-9131 ПР-9131 ПР-9131 ПР-9131 ПР-9141 ПР-9141 ПР-9141 ПР-9141 ПР-9141 ПР-9141 ПР-9141 ПР-9141 ПР-9141 ПР-9141 ПР-9141 ПР-9141 ПР-9141 ПР-9141 |
ПР-9232 ПР-9232 ПР-9232 ПР-9232 ПР-9232 ПР-9232 ПР-9232 ПР-9232 ПР-9142 ПР-9142 ПР-9142 ПР-9142 ПР-9142 ПР-9142 ПР-9142 ПР-9142 ПР-9142 ПР-9142 ПР-9142 ПР-9142 ПР-9142 ПР-9142 |
- - - - - - - - ПР-9312 ПР-9312 ПР-9312 ПР-9312 ПР-9312 ПР-9312 ПР-9312 ПР-9312 ПР-9312 ПР-9312 ПР-9312 ПР-9312 ПР-9312 ПР-9312 |
306 309 310 311 312 313 314 315 316 317 318 319 320 321 322 323 324 325 336 327 328 329 |
- - - - - - - - - - - - - - - - - - - - - - |
1 1 1 1 1 1 1 1 1 1 1 1 1 1 1 1 1 1 1 1 1 1 |
- - - - - - - - - - - - - - - - - - - - - - |
12 - 3 б 9 12 15 18 - 3 6 9 12 15 18 21 24 - 3 6 9 12 |
- 6 5 4 3 2 1 - 8 7 5 5 4 3 2 1 - 10 9 8 7 6 |
- - - - - - - - - - - - - - - - - - - - - - |
- - - - - - - - - - - - - - - - - - - - - - |
1055 1055 1055 1056 1055 1055 l555 1055 1255 1255 1255 1255 1255 1255 1255 1255 1255 1255 1255 1255 1255 1255 |
1140 1140 1140 1140 1140 1140 1140 1140 1340 1340 1340 1340 1340 1340 1340 1340 1340 1340 1340 1340 1340 1340 |
260 260 260 260 260 260 260 260 260 260 260 260 260 260 260 260 260 260 260 260 260 260 |
95 95 95 95 95 95 95 95 115 115 115 115 115 115 115 115 115 115 115 115 115 115 |
|||||||
для обслуживания месте (например, на вводе в распределительный
пункт, у. пускателя электроприемника и др.). При этом сечение от-
ветвления должно иметь не менее 10°/о пропускной способности за-
щищенного участка магистрали.
Предохранители должны устанавливаться на всех нормально
незаземленных полюсах и фазах, а также в нулевых проводникам
двухпроводных цепей в нормальных помещениях с сухими плохо-
проводящими полами (жилых, отдельных конторских, торговых
и складских), обслуживаемых неквалифицированным персоналом,
если в них устройство заземления не требуется. В общественных
зданиях и помещениях, обслуживаемых квалифицированным персо-
налом, предохранители и автоматы на щитках следует уста-
навливать только на всех нормально незаземленных полюсах
и фазах.
Для групповой осветительной и штепсельной сети квартир номи-
нальные токи плавких вставок предохранителен или расцепителей
автоматов должны быть—10 а, для этажных (лестничных) щит-
ков — 15 а.
Для стояков в жилых зданиях, питающих квартиры, токи плав-
ких вставок предохранителей или расцепителей автоматов должны
быть не менее 20 а..
Если ток предохранителей или автоматов, установленных для
зашиты стояков, не превышает 20 а, этажные щитки в жилых зда-
ниях можно не устанавливать.
В нулевых проводах двухпроводных ответвлений от этажных
щитков на лестничных клетках жилых зданий установка предохра-
нителей не требуется. В нулевых проводниках трех- и четырехпро-
водных цепей, а также в нулевых проводниках двухпроводных це-
пей, где требуется заземление, установка предохранителей запре-
щается.
Аппараты зашиты не устанавливаются: если это нецелесообразно
по условиям эксплуатации в местах снижения сечения питающей ли-
нии по ее длине и на ответвлениях от нее; если защита предыдущего
участка линии защищает участок со сниженным сечением (как ли-
нии, так ц ответвления); если незащищенные участки линии выпол-
нены с пропускной способностью, составляющей не менее половины
пропускной способности защищенного учaстка; в местах ответвлений
370 Глава IX, Конструктивное. выполнение электрических устройств
Продолжение табл. 162
|
Тип распределительного пункта |
Номер исполне-ния |
Количество аппаратов в шт. |
Габариты в мм |
Вес в кг |
||||||||||||||||||||||||||
|
Уплотненное защищенное |
Навесное защищенное исполнение с уплотнением |
Стоячее защищенное исполнение с уплотнением |
Ввод |
Автоматы на линиях |
Ширина |
Высота |
Глубина |
|||||||||||||||||||||||
|
А-3120 |
А-3130 |
А-3140 |
А-3161 |
А-3163 |
А-3120 |
А-3130 |
||||||||||||||||||||||||
|
ПР-9141 ПР-9141 ПР-9141 ПР-9141 ПР-9141 ПР-9141 - - - - - - - - - - - - |
ПР-9242 ПР-9242 ПР-9242 ПР-9242 ПР-9242 ПР-9242 ПР-9262 ПР-9262 ПР-9272 ПР-9282 - ПР-9272 ПР-9282 ПР-9262 ПР-9272 ПР-9282 ПР-9272 ПР-9282 |
ПР-9312 ПР-9312 ПР-9312 ПР-9312 ПР-9312 ПР-9312 - - ПР-9322 ПР-9332 ПР-9332 ПР-9322 ПР-9332 - ПР-9322 ПР-9332 ПР-9322 ПР-9332 |
330 331 332 333 334 335 136 137 138 139 140 141 142 143 144 145 146 147 |
- - - - - - - - - - - - - - - - - - |
1 1 1 1 1 1 - - - - - - - - - - - - |
- - - - - - - - - - - - - - - - - - |
15 18 21 24 27 30 - - - - - - - - - - - - |
5 4 3 2 1 - - - - - - - - - - - - - |
- - - - - - 4 6 8 10 12 - - 2 2 2 4 4 |
- - - - - - - - - - - 3 4 1 2 3 1 2 |
1255 1255 1255 1255 1255 1255 1012 1012 1012 1012 1012 1012 1012 1012 1012 1012 1012 1012 |
1340 1340 1340 1340 1340 1340 1060 1060 1270 1485 1485 1485 1485 1060 1060 1060 1060 1060 |
260 260 260 260 260 260 260 260 260 260 260 260 260 260 260 260 260 260 |
115 115 115 115 115 115 140 140 165 195 195 195 195 195 195 195 195 195 |
||||||||||||||||
§ 3. Щиты и щитки 371
|
Тип распределительного пункта |
Номер исполне-ния |
Количество аппаратов в шт. |
Габариты в мм |
Вес в кг |
||||||||||||||||||||||||||
|
Уплотненное защищенное |
Навесное защищенное исполнение с уплотнением |
Стоячее защищенное исполнение с уплотнением |
Ввод |
Автоматы на линиях |
Ширина |
Высота |
Глубина |
|||||||||||||||||||||||
|
А-3120 |
А-3130 |
А-3140 |
А-3161 |
А-3163 |
А-3120 |
А-3130 |
||||||||||||||||||||||||
|
- - - - - - - - - - - - - - - - - - - - - - - - - - |
ПР-9272 ПР-9282 ПР-9282 ПР-9262 ПР-9272 ПР-9272 ПР-9272 ПР-9282 - - ПР-9272 ПР-9272 ПР-9272 ПР-9282 - - ПР-9282 - ПР-9272 ПР-9282 - ПР-9282 - ПР-9282 - - |
ПР-9322 ПР-9332 ПР-9332 - ПР-9322 ПР-9322 ПР-9322 ПР-9332 ПР-9332 ПР-9332 ПР-9322 ПР-9332 ПР-9322 ПР-9332 ПР-9332 ПР-9332 ПР-9332 ПР-9332 ПР-9322 ПР-9332 ПР-9332 ПР-9332 ПР-9332 ПР-9332 ПР-9332 ПР-9332 |
148 149 150 209 210 336 337 338 339 340 341 401 402 403 404 405 406 407 408 409 410 411 412 413 414 415 |
- - - - - - - - - - - - - - - - - - - - - - - - - - |
- - - 1 1 - - - - - - - - - - - - - - - - - - - - - |
- - - - - 1 1 1 1 1 1 - - - - - - - - - - - - - - |
- - - - - - - - - - - 1 1 1 1 1 1 1 1 1 1 1 1 1 1 1 |
- - - - - - - - - - - - - - - - - - - - - - - - - - |
6 6 8 4 6 4 6 8 10 12 2 4 6 8 10 12 - - - - - - - - - - |
- - - - - - - - - - - 3 4 1 2 3 1 2 - - - - - - - - |
1012 1012 1012 1012 1012 1012 1012 1012 1012 1012 1012 1012 1012 1012 1012 1012 1022 1012 1012 1012 1012 1012 1012 1012 1012 1012 |
1060 1060 1060 1060 1060 1060 1060 1060 1060 1060 1060 1060 1060 1060 1060 1060 1060 1060 1060 1060 1060 1060 1060 1060 1060 1060 |
260 260 260 260 260 260 260 260 260 260 260 260 260 260 260 260 260 260 260 260 260 260 260 260 260 260 |
195 195 195 140 140 140 140 140 140 140 140 140 140 140 140 140 140 140 140 140 140 140 140 140 140 140 |
||||||||||||||||
от питающей линии к электроприемникам малой мощности (лампам
236 Глава VI. Сети освещения
Таблица 110
Предохранители
|
Тип предохранителя |
Номинальный ток в а. |
Плавкие вставки в a |
Количество вставок на один патрон |
Габаритные размеры в мм |
Вес в кг |
||
|
длина |
ширина |
высота |
|||||
|
ПО-1 |
20 |
6,10,15,20 |
1 |
85 |
46 |
43 |
- |
|
НПН-15 |
15 |
6, 10, 15 |
1 |
115 |
24 |
31 |
0,2 |
|
НПН-60 |
60 |
15, 20, 25, 35, 45, 60 |
1 |
118 |
30 |
42 |
0,32 |
|
ПН-2-100 |
100 |
30, 40, 50, 60, 80, 100 |
1 |
189 |
40 |
65 |
0,50 |
|
ПН -2-250 |
250 |
80, 100, 120, 150,200,250 |
1 |
225 |
50 |
83 |
0,87 |
|
ПН-2-400 . . . |
400 |
200, 250, 300, 400 |
1 |
276 |
66 |
94 |
1,55 |
|
ПН-2-600 . . . |
600 |
350, 400, 500, 600 |
1 |
342 |
80 |
120 |
2,90 |
|
ПНБ-2-40 . . . |
40 |
15, 25, 40 |
1 |
112 |
32 |
32 |
0,16 |
|
ПНБ-2-60 |
60 |
40, 60 |
1 |
121 |
35 |
38 |
0,23 |
|
ПНВ-2-100 |
100 |
60, 80, 100 |
1 |
185 |
40 |
65 |
0,5 |
|
ПНБ-2-150 |
150 |
100, 125, 150 |
1 |
185 |
40 |
65 |
0,5 |
|
ПНБ-2-200 |
200 |
150, 200 |
1 |
215 |
50 |
83 |
0,94 |
|
ПНБ-2-300 |
300 |
200, 260, 300 |
1 |
280 |
50 |
82 |
1,09 |
|
ПНБ-2-400 |
400 |
300, 400 |
1 |
342 |
66 |
112 |
2,3 |
|
ПНБ-2-В-600 |
600 |
400, 500, 600 |
1 |
276 |
66 |
94 |
1,55 |
|
КП-25 |
25 |
6, 10, 15, 20, 25 |
1 |
64 |
32 |
45 |
0,1 |
|
КП-60 |
60 |
15, 20, 25, 35, 45, 60 |
1 |
112 |
35 |
42 |
0,2 |
|
КП-100 |
100 |
30, 40, 50, 60, 80, 100 |
1 |
125 |
32 |
47 |
0,4 |
|
КП-200 |
200 |
80.100,120, 150, 200 |
1 |
156 |
52 |
63 |
0,72 |
|
КП-350 |
350 |
200, 250, 300. 350 |
1 |
215 |
52 |
93 |
1,0 |
|
ПР-2 |
15 |
6, 10, 15 |
1 |
91 |
16 |
26 |
0,11 |
|
ПР-2 |
60 |
15, 20, 25, 35, 45, 60 |
1 |
121 |
24,5 |
33 |
0,2 |
|
ПР-2 |
100 |
60, 80, 100 |
1 |
197/145 |
43 |
56 |
0,44 |
|
ПР-2 |
200 |
100, 125, 160, 200 |
1 |
231/165 |
56 |
76,5 |
0,76 |
|
ПР-2 |
350 |
200, 225, 260, 300, 350 |
Для 200 и 260 а— по 1;для остальных — по 2 |
271/200 |
72 |
100 |
1,4 |
372 Глава IX. Конструктивное выполнение электрических устройств
Таблица 163
Щитки освещения четырехпроводные изготовления
Главэлектромонтажа Минстроя РСФСР
|
Тип |
Колличество аппаратов в щт. |
Габариты в мм |
Вес в кг |
||||||||||
|
Ввод |
Автоматы на линиях |
ширина |
высота |
Глубина |
|||||||||
|
Выключатель ПВ-3-100 |
А-3163 |
А-3162 |
А-3161 |
АБ-25 |
|||||||||
|
ОПМ-1/3-3 ОПМ-3/3-3 ОПМ-3/9-1 ОПМ-З/З-2 OПВ-6 ОПВ-9 ОПВ-12 OП-6 ОП-12 |
1 1 1 1 1 1 1 1 1 |
- 3 - - - - - - - |
- - - 3 - - - - - |
3 - 9 - - - - - - |
- - - - 6 9 12 6 12 |
716 716 716 716 374 - 500 374 500 |
190 350 350 350 260 - 260 260 260 |
180 180 180 180 140 - 140 140 140 |
19 22,9 23,5 23,2 - - - - - |
||||
§ 4.
Нулевые провода четырехпроводных систем 380/220 и 220/127 в наглухо заземляются, В производственных помещениях, жилых и общественных зданиях (котельных, насосных, электромашинных помещениях лифтов, мастерских, прачечных, помещениях для приготовления пищи в столовых, ресторанах и т. п.) заземлению подлежат корпуса электрических машин, аппаратов .и светильников, приводы электрических аппаратов» каркасы распределительных щитов, щитков и шкафов, корпуса кабельных муфт, оболочки кабелей и проводов, стальные трубы электропроводки и т. п.
В помещениях без повышенной опасности жилых и общественных зданий, а также в кухнях квартир, в ванных комнатах и уборных квартир и номеров гостиниц Заземления металлических корпусов стационарно установленного осветительного электрооборудования не требуется. В этих же помещениях запрещается заземление металлических корпусов переносных электроприемников.
§ 5. Выбор защитных и пусковых аппаратов 237
Продолжение табл. 111
|
Тип предохранитель |
Номинальный ток в a |
Плавкие вставки в а |
Количество вставок на один патрон |
Габаритные размеры в мм |
Вес в кг |
||
|
длина |
ширина |
высота |
|||||
|
ПР-2 |
600 |
350, 430, 500, 600 |
2 |
367/257 |
140 |
122 |
2,23 |
|
ПР-2 |
1000 |
600, 700, 850, 1000 |
2 |
490/350 |
155 |
154 |
5,4 |
2. Для предохранителей, выполняемых с передним и задним присоединениями, размеры, показанные дробью, означают: числитель— размер для переднего присоединения, знаменатель — размер для заднего присоединения.
Таблица 112
Пакетные выключатели и переключатели
|
Наименование |
Тип |
Количество полюсов |
Длительно допустимый номинальный ток в а |
Наибольшие отключаемые токи в a |
|
|
220 в |
380 в |
||||
|
Выключатель однополюсный |
ПВ-1-10 |
1 |
10 |
6 |
4 |
|
Выключатель двухполюсный |
ПВ-2-10 |
2 |
10 |
10 |
6 |
|
То же |
ПВ-2-25 |
2 |
25 |
25 |
15 |
|
ПВ-2-60 |
2 |
60 |
60 |
40 |
|
|
ПВ-2-100 |
2 |
100 |
100 |
60 |
|
|
Выключатель трехполюсный |
ПВ-3-10 |
3 |
10 |
10 |
6 |
|
То же |
ПВ-3-25 |
3 |
25 |
25 |
5 |
|
ПВ-3-60 |
3 |
60 |
60 |
40 |
|
|
ПВ-З-100 |
3 |
100 |
100 |
60 |
|
|
Выключатель - двухполюсный |
ВПК -2- 10 |
2 |
10 |
10 |
6 |
|
Выключатель трехполюсный . |
ВПК-3-10 |
3 |
10 |
10 |
6 |
|
То же |
ВПК-3-25 |
3 |
25 |
25 |
15 |
|
Выключатель двухполюсный герметический |
ВГП-10 |
2 |
10 |
10 |
6 |
|
Выключатель трехполюсный герметический |
ГПК-3-10 |
3 |
10 |
10 |
6 |
238 Глава VI. Сети освещения
Продолжение табл. 112
|
Наименование |
Тип |
Количество полюсов |
Длительно допус- тимый номиналь- ный ток в а |
Наибольшие отключаемые токи в a |
|
|
220 в |
3SO а |
||||
|
То же Переключатель однополюсный на 2 направления ..... То же, герметический .... Переключатель двухполюсный на 2 направления ..... То же ........... ………………. ………………. Переключатель двухполюсный с одним нулевым положением То же……. ………….. …………… Переключатель трехполюсный с одним нулевым положе- Переключатель двухполюсный То же…. …….. ……… Переключатель трехполюсный То же ............ |
ГПК-3-25 ГПК-3-60 ГПК-3-1СО ПП-1-10/4С ГПП-10/4С ПП-2-10/4С ПП-2-25/4С ПП-2-10/Н-2 ПП-2-25/Н-2 ПП-2-60/Н-2 ПП-2-100/Н-2 ПП-3-10/Н-2 ПП-3-25/Н-2 ПП-3-60/Н-2 ПП-3-1СО/Н-2 ПП-2-10/Н-3 ПП-2-25/Н-3 ПП-2-60/Н-3 ПП-3-10/Н-3 ПП-3-25/Н-3 ПП-3-60/Н-3 |
3 3 3 1 1 2 2 2 2 2 2 3 3 3 3 2 2 2 3 3 3 |
25 60 100 6 6 10 25 10 25 60 100 10 25 60 100 10 25 60 10 25 60 |
25 60 100 6 6 10 25 10 25 60 100 10 25 60 100 10 25 60 10 25 60 |
15 40 60 4 4 6 15 6 15 40 60 6 15 40 60 6 15 40 б 15 40 |
В указан ных помещениях должны заземляться только металлические корпуса силовых стационарных электроприемников: электрических плит, кипятильников и т, п., а также металлические трубы к ним.
§ 4, Заземление 373
Т а б л и ц а 164
Щитки освещения Ленинградского завода треста Гидроэлектромонтаж
|
Тип и описание |
Количество автоматов в шт. |
Габариты в мм |
||||||
|
Ввод |
Линии |
|||||||
|
А-3163 |
А-3162 |
А-3161 |
А-3162 |
ширина |
высота |
глубина |
||
|
Без расцепителя |
С тепловым расцепителем |
|||||||
|
A-IV-A-3, четырехпроводный на 3 группы, в металлическом корпусе, для установки в A-IV-A-6, то же, на 6 групп A-IV-A-9, то же, на 9 групп A-IV-A-12, то же, на 12 групп A-IV-A-3п, то же, на 3 группы, но проходной A-IV-A-бп, то же, на 6 групп A-IV-A-9n, то же, на 9 IV-A-6, четырехпро- на 6 групп, в металлическом корпусе, для установки в нише IV-A-9, то же» на 9 групп IV-A-12, то же, на 12 групп IV- А- 15, то же, на 15 групп lV-A-бп, то же, на 6 групп (проходной) |
1 1 1 1 1 1 1 — — — — — |
— — — — — — — — — — — — |
3 6 9 12 3 6 9 6 9 12 15 6 |
— — — — — — — — — — — — |
354 354 484 564 351 351 484 354 354 484 564 354 |
400 400 400 400 100 400 400 400 400 400 400 400 |
120 120 120 120 120 120 120 120 120 120 120 120 |
|
Таблица 113
-- Выключатели однополюсные автоматические типа АБ-25
|
Напряжение в в |
Номинальный ток в а |
Время срабатывания теплового расцепителя |
Завод-изготовитель |
||
|
1,1 Iн |
1,45 Iн |
6 Iн |
|||
|
220 |
15: 20 25 |
1 ч |
30 мин |
1—6 сек |
Курский завод низковольтной электроаппаратуры |
§ 5. Выбор защитных и пусковых аппаратов 239
Таблица 114
Выключатели однополюсные автоматические
|
Тип |
Расцепитель |
Напряжение в в |
Номинальный ток в а |
Номинальный ток расиепи- теля в а |
Кратность тока элек- тромагнит- ного рас- цепителя |
Завод- изготовитель |
|
АО-15МТ |
Комбини- |
220 |
15 |
1; 1,2; 1,5; |
10-15 |
Курский за- |
|
|
рованный |
|
|
2; 2, 5; 3; 4; |
|
вод низко- |
|
|
|
|
|
5; 6; 8; 10; |
|
вольтной |
|
|
|
|
|
12 и 15 |
|
электроап- |
|
|
|
|
|
|
|
паратуры |
|
АО-15ЭМ |
Электро- |
220 |
15 |
1; 1, 2; 1,5; |
1,3 |
|
|
|
магнитный |
|
|
2; 2,5; 3; 4; |
|
|
|
|
|
|
|
5; 6; 8; 10; |
|
|
|
|
|
|
|
12; 15 и 20 |
|
|
|
АО-15М |
То же |
220 |
15 |
1; 1,2; 1,5; |
2-10 |
|
|
|
|
|
|
2; 2,5; 3; 4; |
|
|
|
|
|
|
|
5; 6; 8; 10; |
|
|
|
|
|
|
|
12; 15 и 20 |
|
|
|
АО- 15T |
Тепловой |
220 |
15 |
1,5; 2,5; 4; |
_ |
|
|
|
|
|
|
6; 10; 15; 20 |
|
|
|
|
|
|
|
и 25 |
|
|
Автоматы серии А-3100
|
Серия |
Тип |
Номинальный ток в а |
Напряжение в в |
Количество полюсов |
Тип расцепителя |
Номинальный ток расцепителей в а |
|
А-3161 |
220 |
1 |
Тепловой |
15, 20, 25, 30, |
||
|
40 и 50 |
||||||
|
А-3160 |
А-3161/7 А-3162 |
50 |
220 380 |
1 2 |
Без расцепителя Тепловой |
15, 20, 25, 30, |
|
40 и 50 |
Наиболее распространены следующие типы приемных станций (рис. 65): СДПУ-1-—сигнализационная дымовая пожарная установка— состоит из приемной станции СД-10, преобразователя ТПН-70 для резервного питания от аккумуляторной батареи (нормально установка питается от сети 220 в переменного тока), 100 извещателей ДИ-1 и распределительной коробки. Извещатели устанавливают в контролируемом помещении обычно па потолке. Площадь, контролируемая одним извещателем, до 100 м2. Станция обеспечивает непрерывный автоматический контроль исправности лу-
а) От пожарных излучателей

Рис. 65, Схема пожарных сигнализационных установи
а — СДПУ-1; б — СТПУ-1
Глава X. Слаботочные устройства 387
чей. Световые и звуковые сигналы станции дублируются для подачи в ближайшую пожарную часть, Станция имеет 10 лучей, в каждый из которых включается 10 извещателей. Установка может быть использована на базах, в складских помещениях, магазинах, в учреждениях. Она особенно целесообразна там, где есть вещества, выделяющие при горении много дыма, а также во взрывоопасных помещениях.
СТПУ-1 —сигнализационная тепловая пожарная установка — состоит из приемной станции СТ-5, распределительной коробки и 25 извещателей ПТИМ-1, срабатывающих при температуре окружающей среды 60°. Извещатели в контролируемом помещении устанавливаются на потолке. Одним извещателел: контролируется площадь до 25 м2. Обеспечивается автоматический контроль исправности лучей и дублирование сигналов для подачи в пожарную часть, В каждый из 5 лучей включается до 5 извещателей. Станции питается от сети 220 в переменного тока, при исчезновении напряжения в которой автоматически переключается на резервную сеть того же напряжения. Установка может быть использована на складах, в мага-зинах, учреждениях и иных невзрывоопаспых помещениях. Схема станции позволяет включать в блок до пяти подобных станций, а также подключать эту станцию к приемной ста ним и типа ТЛО.
§ 2. Расчет силовой сети 247
|
Электроплита: плита ............... жаровочиый шкаф ......... |
ЭП-12 |
— — |
59,5 4,5 |
|
Электрокотел с регулировкой емкостью 40 л .......:.. ........ |
ЭК-40 |
--- |
0,9-5,4 |
|
То же, емкостью 60 л ......... |
ЭК-60 |
— |
1,16—7,0 |
|
125 . ......... |
ЭК-125 |
— |
2,7-16 |
|
250 .......... |
ЭК-250 |
— |
5-30 |
|
Электросковородка .......... |
УЖГ-Э1 |
— |
3—9 |
|
То же ................. ........... |
535-М Э-1 |
— --- |
3,25-13 1,67-5 |
|
Пекарский шкаф ........... |
ШК-2 |
— |
1,22 |
|
Пекарский шкаф ........... |
ЭШ-3 |
— |
0,45 |
|
Шашлычная печь ........... |
Ш-1 |
— |
0.27 |
|
Электромармит ............ |
ЭПМ-3 |
— |
0,625— |
|
То же ................. ЭСТ-1 |
ЭМ-4 |
- — |
1,25—2,5 1,2 |
|
Электромармит комбинированный: ванна шкаф ............... конфорка .............. |
ЭМК-1 |
— — — |
0,6-1,8 2,5 0.3 |
|
Водогрейный аппарат ......... |
1100 л/ч |
2,6 2,4 |
322 Глава IX. Конструктивное выполнение электрических устройств
Продолжение табл. 144
|
Характерис- тика помеще- ния или среды |
Вид электро- проподки |
Способы выполнения |
|
|
Скрытая |
б) в трубах (изоляционных влагостойких. |
|
|
|
стальных); |
|
Жаркое |
Открытая |
а) непосредственно по несгораемым и |
|
|
|
сгораемым конструкциям и поверх- |
|
|
|
ностям: на роликах и изоляторах, в |
|
|
|
стальных трубах, коробах, лотках, а |
|
|
|
также кабелями и защищенными про- |
|
|
|
водами; |
|
|
Скрытая |
б) в трубах (изоляционных, изоляцион- |
|
|
|
ных с металлической оболочкой, |
|
|
|
стальных); |
|
Пыльное |
Открытая |
а) непосредственно по несгораемым и |
|
|
|
трудносгораемым конструкциям и по- |
|
|
|
верхностям: на изоляторах, в трубах |
|
|
|
(изоляционных с металлической обо- |
|
|
|
лочкой, стальных), коробах, а также |
|
|
|
кабелями и защищенными проводами; |
|
|
|
б) непосредственно по сгораемым кон- |
|
|
|
струкциям и поверхностям: в стальных |
|
|
|
трубах, коробах, а также кабелями и |
|
|
|
защищенными проводами; |
|
|
Скрытая |
в) в трубах (изоляционных, изоляционных |
|
|
|
с металлической оболочкой, стальных), |
|
|
|
коробах, а также специальными про- |
|
|
|
водами; |
|
Химически |
Открытая |
а) непосредственно по несгораемым и |
|
активная |
|
сгораемым конструкциям и поверх- |
|
среда |
|
ностям: на изоляторах, в стальных |
|
|
|
трубах, а также кабелями; |
|
|
Скрытая |
б) в стальных и изоляционных трубах; |
|
Наружная электро- |
Открытая |
а) па изоляторах, в стальных трубах, кабелями, а под навесами также на |
|
проводка |
|
роликах; |
|
|
Скрытая |
б) в стальных трубах, специальными |
|
|
|
проводами. |
ТЛО-20-ЗОм — станция тревожно-лучевая, оптическая па 20— 30 номеров. Питается она постоянным током 24—48 в, и при ее установке можно использовать распределительные телефонные сети объекта. Помимо световых извещателей, в лучи сети сигнализации этой станции можно включать и кнопочные нзвещатели тина ПКИЛ. ТЛО-20-30-2М— станция, предназначенная для устройства пожарной и охранной сигнализации. Питание осуществляется от аккумуляторной батареи 24 в или отнести переменного тока через выпрямитель того же напряжения на стороне постоянного тока. При -использовании выпрямителя должно быть обеспечено резервное питание, В лучи сети сигнализации этой установки, кроме пожарных извещателей, можно включать охранные, кнопочные извещатели типа ОКИЛ-4. Применяется установка в торговых, бытовых и других предприятиях, где имеется охранная сигнализация с выводом сигналов тревоги на ревун, устанавливаемый па фасаде здания или на центральный пост охраны.
СКПУ-1 —сигнализационная комбинированная пожарная установка, предназначенная для организации пожарной и охранной сигнализации,— состоит из пяти блоков пожарной сигнализации типа БПС-10, одного блока охранной сигнализации типа БОС-5, блока автоматической информации БАИ-1 и блока питания БП. Питание осуществляется от сети переменного тока 220 в двумя раздельными линиями (одна резервная).
Переключение на резервное питание автоматическое. Напряжение на лучах пожарных извещателей 215 в, а на лучах охранных извещателей — 16 в постоянного тока. Поэтому для обоих видов сигнализации требуются самостоятельные сети. Станция дает возможность присоединения 50 лучей, в каждый из которых допустимо включение до 10 извещателей типа СИ-1 или КН-1. В каждый из лучей охранной сигнализация включается один нзвещатель типа
388 Глава X. Слаботочные устройства.
ОИ-1. Длина луча до охраняемого периметра не должна превышать 180 м. Извещатель типа ОИ-1 срабатывает при приближении злоумышленника на 30 см. Установка автоматически производит вызов телефонного номера 01 с последующей передачей сигнала о загорании или проникновении злоумышленника.
§ 2. Электропроводки 323
предназначенные для скрытой проводки без труб по трудносгорае-
мым поверхностям (см. табл. 144).
В отдельной изоляционной или металлической трубе, гибком
рукаве и замкнутом канале строительных конструкций, как правило,
должны прокладываться провода одной цепи. В стальных и других
механически прочных трубах и замкнутых каналах строительных
конструкций допускается совместная прокладка проводов и кабелей
(за исключением взаимно резервирующих): а) всех цепей одного
агрегата; б) цепей, питающих сложный светильник; в) цепей не-
скольких групп одного вида освещения (рабочего пли аварийного)
с общим числом проводов в трубе не более восьми; г) осветительных
цепей напряжением до 36 о с цепями напряжением до 660 в вклю-
чительно при условии заключения проводов цепей до 36 в в отдель-
ную изоляционную трубу.
. Не разрешается прокладывать одиночные фазные провода
в стальных пли изоляционных трубах со стальной оболочкой, если
они защищены па поминальный ток более 25 а.
Внутренний диаметр труб, число и радиусы их изгибов, а также
расположение соединительных и других коробок должны обеспечи-
вать возможность протягивания проводов и их замену.
В табл. 147—149 приведены данные по выбору стальных и изо-
ляционных труб для прокладки проводов. Открыто прокладываемые
'Трубы должны изготовляться из несгораемых или трудиосгораемых
материалов. Конструкция коробок должна соответствовать способам
прокладки и условиям среды,
В стационарной электропроводке провода и кабели с алюминие-
выми жилами сечением 2,5 мм2 и более должны применяться нарав-
не с проводами и кабелями с медными жилами, однако, имея в виду
дефицитность меди, следует в первую очередь ориентироваться па
использование проводов и кабелей с алюминиевыми жилами,
Провода и кабели только с медными жилами должны приме-
няться:
а) на чердаках при открытой проводке и при наличии сгораемых
перекрытий;
б) на всех лифтах па участках цепей управления от этажных
Наружные сети пожарной сигнализации выполняются телефонным кабелем марки ТГ в бетонных блоках, внутренние – проводами ТРПКМ, ПРВПМ, ТРПК, ТРВК и ТРВКЭ, прокладываемыми преимущественно скрыто.
Установка охранной сигнализации состоит из источника питания, приемо-контрольных и сигнальных приборов, датчиков и линии блокировки (рис. 66). Источником питания может служить сеть переменного тока или аккумуляторная батарея. При питании установки от сети переменного тока должно быть обеспечено резервирование от независимого источника.

Рис. 66. Простейшая схема сигнального устройства
Приемно-контрольные приборы в зависимости от принятой схемы при срабатывании одного из датчиков приводят в действие световой или звуковой сигнал или же передают сигнал о проникновении преступника на охраняемый объект через специальную линию или телефонный ввод объекта на центральный пост охраны. Приемно-контрольные приборы должны устанавливаться в местах, не доступных для посторонних лиц.
В качестве сигналов, устанавливаемых непосредственно на объекте (обычно на фасаде охраняемого объекта), служат: световой – красная лампа, акустический – звонок громкого звучания, ревун или серена. Лампа должна быть заключена в защитную арматуру, акустический сигнал – в кожух, выкрашенный под цвет фасада. Устанавливаются сигналы на высоте не менее 2,5-3 м от земли.
Глава Х. Слаботочные устройства 389

Рис. 67. Расположение сигнальных устройств
Простейшим типами датчиков охранной сигнализации являются контактные датчики, работающие на замыкание или размыкание линии блокировки. Предпочтительно использование датчиков, работающих на размыкание потому, что при этой системе обрыв линии блокировки вызывает действие сигнала и, следовательно, исправность линии постоянно контролируется. Все места возможного проникновения преступников на охраняемый объект должны быть блокированы датчиками. К таким местам относятся двери, окна, витрины, легкие стены и перекрытия, решетки, печные разделки, вентиляционные отверстия, люки и др. (рис. 67).
рядов зажимов и рядов зажимов па кабине лифта до аппаратов,
обеспечивающих безопасность пользования лифтом и подверженных
постоянным ударам и вибрациям; токопровод к кабине должен вы*
полняться гибким кабелем или гибкими мпогопроволочпымп прово-
дами с медными жилами, заключенными в общий резиновый
шланг;
в) в театрах, кинотеатрах, клубах и пр., на сцене, арене, эстраде,
в кинопроекционной, светопроекционной, помещениях управлении',
аппаратных регулирования, стационарной аккумуляторной, на чер-
даках, в зрительных, залах с числом мест 800 и более, а также для
электропроводки цепей управления;
г) во взрывоопасных помещениях классов В-1 и В-1а.
Открытая проводка может применяться в любых помещениях
без повышенной опасности (сухих, с нормальной температурой, с де-
ревянными или другими изоляционными полами) на высоте не менее
2 м от пола, а во всех остальных помещениях — не ниже 2,5 м.
324 Глава IX. Конструктивное выполнение электрических устройств
Таблица 145
Марки наиболее употребительных проводов
|
Марка |
Напряжение в в |
количество |
сечение мм2 |
Наименование |
Область применения и способ прокладки |
|
ПРЕД |
380 |
2 |
0,5—6 |
Медный, двухжильный с резиновой изоляцией, в полихлорвиниловой оболочке (шнур) |
Сухие отапливаемые помещения. Предназначен для прокладки на роликах (рекомендуется для временных сооружений) |
|
ДПРГ |
380 |
2 |
0,5—10 |
То же, без полихлорвиниловой оболочки, в пропитанной оплетке! гибкий |
Сырые помещения и вне зданий. Пред- назначены для прокладки на роликах, для зарядки непереносных арматур |
|
ПР |
220 500 |
1 1 |
1— 4 0,75—400 |
Медный одножильный с резиновой изоляцией в пропитанной оплетке |
Сухие помещения: открыто — на роликах, в тонкостенных стальных трубах*, в бумажно-металлических трубках; скрыто— в изоляционных трубках, в бумажных трубках внутри стеновых блоков, в резиновых полутвердых, резино-битумных трубках; в полу в стеклянных трубках; в каналах и пустотах строительных конструкций |
|
АПР |
380 500 |
1 1 |
2,5—150 2,5—400 |
Алюминиевый одно- жильный с резиновой изоляцией в пропитан- ной оплетке |
Сырые помещения: открыто на роликах, изоляторах в водогазопроводных трубах и скрыто в каналах и трубах из оцинко- |
Помимо перечисленной
390 Глава X. Слаботочные устройства.
Таблица 171
Провода и кабели слаботочных устройств
|
Марка |
Количество жил |
Сечение в мм2 или диа- метр в мм |
Наименование |
Область применения и способ прокладки |
|
ТГ |
20Х2 30Х2 40Х2 50Х2 |
0,5 |
Телефонный голый с медными жилами с бумажной изоляцией в свинцовой оболочке |
Сети телефона и пожарной сигнализации, в бетонных блоках |
|
ТСВШ |
5Х3 11Х3 21Х3 21Х2 |
0,5 |
Телефонный станционный с медными жилами с полихлорвиниловой изоляцией в винилитовой оболочке |
Сети телефона: сухие и влажные помещения. Открыто |
|
ТРВКШ |
5Х2 10Х2 20Х2 30Х2 |
0,5 |
Телефонный распределительный с медными эмалированными жилами, с полихлорвиниловой изоляцией, в полихлорвиниловой оболочке, многопарный |
То же. В железобетонных коробах и каналах ;в стеновых блоках |
|
ТРПКШ |
5Х2 10Х2 20Х2 30Х2 40Х2 50Х2 70Х2 100Х2 |
0,5 |
Телефонный распределительный с медными жилами, с полиэтиленовой изоляцией, в полихлорвиниловой оболочке, многопарный |
Сети телефона: в железобетонных коробах и каналах; в стеновых блоках. |
391 Глава X. Слаботочные устройства.
|
Марка |
Количество жил |
Сечение в мм2 или диа- метр в мм |
Наименование |
Область применения и способ прокладки |
|
ПТКШ |
10Х2 20Х2 30Х2 50Х2 100Х2 |
0,5 |
Телефонный с медными жилами с полиэтиленовой изоляцией, шланговый |
То же |
|
ТРПКМ |
20Х2 30Х2 50Х2 |
0,5 |
Телефонный распределительный с полиэтиленовой изоляцией в полихлорвиниловой оболочке |
Сети телефона и пожарной сигнализации. Открыто и скрыто в каналах стеновых блоков |
|
ТРПК |
1Х2 |
0,5 |
То же |
Сети телефона и пожарной сигнализации. Открыто и скрыто под штукатуркой |
|
ПРВПМ |
2 4 |
D 0,8 1 1,2 D1,2 |
С полихлорвиниловой изоляцией |
Сети сигнализации. Открыто и скрыто под штукатуркой |
|
ТРВК |
1Х2 |
0,5 |
Телефонный с медными жилами с резиновой изоляцией в винилитовой оболочке |
Сети телефона, охранной и пожарной сигнализации; сухие, влажные и сырые помещения. Открыто и скрыто под штукатуркой |
|
ТРВКЭ |
1Х2 |
0,5 |
То же, с медными эмалированными жилами |
Сети телефона, часофикации, пожарной сигнализации; сухие и влажные помещения. Открыто |
|
ПРЖ |
2 |
0,5 0,75 1 1,5 2,5 4 |
Для радиофикации со стальными жилами с резиновой изоляцией |
Радиотрансляционные сети; сухие и влажные помещения. Открыто и в тонкостенных трубах |
§ 2. Электропроводки 325
|
ванной кровельной стали с изоляционным слоем пергамина |
|||||
|
ПРГ |
500 |
1 |
0,75—400 |
То же, что и ПР, но гибкий |
То же, но применяется главным обра- зом для зарядки арматур и особенно там, где возможна вибрация |
|
ПРТО |
500 2000 |
1 2 3 4 |
1-500 1—120 |
Медный, с резиновой изоляцией, в пропитан- ной оплетке |
Сухие помещения: открыто и скрыто в бумажно-металлических трубках |
|
АПРТО |
500 2000 |
1 2 3 4 |
2,5—400 2,5—120 |
То же, но алюминиевый |
Сырые и жаркие помещения: открыто и скрыто в стальных тонкостенных и во- догазопроводных трубах |
|
ПРВ АПРВ |
500 500 |
1 1 |
0,75—6 2,5-6 |
Медный, с резиновой изоляцией, в полихлорвиниловой оболочке То же, но алюминиевый |
Сухие и влажные помещения: откры- то—на роликах и изоляторах; скрыто — в каналах строительных конструкций и в изолирующих трубках под штукатур- кой; в штрабах, зазорах и щелях |
326 Глава IX. Конструктивное выполнение электрических устройств
Продолжение табл. 145
|
Марка |
Напряжение в в |
Количество жил |
Предельные сечения в мм2 |
Наименование |
Область применения и способ прокладки |
|
ТПРФ |
500 |
1 2 3 4 |
1-10 |
Медный, с резиновой изоляцией, в трубчатой металлической фальцованной оболочке |
Сухие и пыльные помещения: открыто— на скобах |
|
АТПРФ |
500 |
2 3 |
2,5-4 |
То же, но алюминиевый |
|
|
ПВ |
500 |
1 |
0,75—95 |
Медный с полихлорвиниловой изоляцией |
Сухие помещения: открыто — на роликах (только в цветной изоляции в сельской местности) и в бумажно-металлических трубках |
|
АПВ |
500 |
1 |
2,5- 120 |
То же, но алюминиевый |
Сухие и сырые помещения: скрыто— в изоляционных трубах, а также в пусто- тах и каналах строительных конструкций без изоляционных труб и под штукатур- кой |
|
АПВГ |
660 |
2 3 4 |
2,5—6 4—50 |
Алюминиевый, с поли- этиленовой изоляцией, в полихлорвиниловой оболочке |
То же, и в сельской местности |
|
ППВ |
500 |
2 3 |
0,75-4 |
Медный, с полихлор- виниловой изоляцией, плоский с разделитель- ной пленкой |
Сухие и влажные помещения: открыто- только в цветной изоляции по оштукатуренным стенам и потолку и по обоям; скрыто— так же, как провод марки ПВ |
|
АППВ |
500 |
2 3 |
2,5-6 |
То же, но алюминиевый |
и АПВ |
392 Глава X. Слаботочные устройства.
Продолжение табл. 171
|
Марка |
Количество жил |
Сечение в мм2 или диа- метр в мм |
Наименование |
Область применения и способ прокладки |
|
ПТВЖ |
2 |
D 0.6 D 1.2 |
Трансляционный со стальной жилой, с полихлорвиниловой изоляцией |
Радиотрансляционные сети; сухие и влажные помещения. Открыто и в тонкостенных тубах |
|
РК-1 РК-2 |
Радиочастотный коаксиальный То же |
Сеть телевидения; сухие и влажные помещения. Открыто и в трубах |
||
|
КВТ-3 |
Высокочастотный для телевизионных антенн |
То же |
||
|
ПЭЛ |
1 |
D от 0,02 до 2,44 |
Медный эмалированный и лакированный |
Сети охранной сигнализации. По окнам и дверям на клею |
|
ПВГ |
1 |
1,5 2,5 |
Авиационный и автотракторный с медной жилой, с резиновой изоляцией, в виниловой оболочке, голый |
Газосветная реклама. По стенам на скобах |
|
ПВЛ |
* |
1,5 2,5 |
То же, но лакированный |
То же |
393 Глава X. Слаботочные устройства.
аппаратуры, в установке охранной сигнализации необходимо иметь лампу контроля наличия напряжения в питающей сети (обычно лампа синего цвета в защитной арматуре, устанавливаемая в удобном для обозрения месте, в витрине, застекленном тамбуре входной двери и т. п.), а также, выключатель («кнопку сброса») установки охранной сигнализации, расположенный у входной двери охраняемого объекта. При прокладке проводов сети охранной сигнализации помимо соблюдении ПУЭ, необходимо руководствоваться также правилами по строительству и ремонту радиотрансляционных сетей. Все линии охранной сигнализации должны быть совершенно надежными. Линии, прокладываемые по наружным стенам зданий должны быть выполнены скрыто или защищены от механических повреждении. Линии, прокладываемые внутри помещений охраняемого объекта, могут быть выполнены скрыто или открыто При трассировке линяй необходимо выбирать кратчайшие пути, По наружным стенам провода должны прокладываться не ниже 25 и а в лестничных клетках и вестибюлях не ниже 3 м.
§ 2. Электропроводки 327
|
АППР |
380 |
1 2 |
2,5-6 |
То же, с резиновой изоляцией, плоский, с разделительной пленкой |
Для прокладки по деревянным основаниям (в сельской местности) |
|
ППВС |
500 |
2 3 |
0,75-4 |
Медный, с полихлор- виниловой изоляцией, плоский без раздели- тельной пленки |
Сухие и влажные помещения: только для скрытой проводки под штукатуркой; в щелях, зазорах, штрабах, в пустотах и каналах строительных конструкций— без |
|
АППВС |
500 |
2 3 |
2,5-6 |
То же, но алюминие- вый |
изоляционных трубок |
|
АПН |
500 |
1 2 3 |
2,5-6 2,5-4 2,5-4 |
Алюминиевый, с най- ритовой изоляцией |
Сухие и влажные помещения: открыто — на роликах по деревянным и оштукату- ренным стенам и потолку в сельской местности, а также по оштукатуренным стенам с обоями. Скрыто— под штукатур- кой, не содержащей в своем составе по- таша, мылонафта и других добавок, раз- рушающих изоляцию и алюминиевый провод |
|
РКРМ |
380 |
1 |
0,75-95 |
Медный, с изоляцией из поликсилоксановой резины (термостойкий) |
Для зарядки арматур |
328 Глава IX. Конструктивное выполнение электрических устройств
Марки наиболее употребительных кабелей напряжением до 1000 в Таблица 146
|
Марка |
Напряжение в в |
Количество жил |
Предельные сечения в мм2 |
Характеристика |
Область применения |
|
СБ |
1000 |
1 2 3 4 |
4-800 2,5 -150 2,5-240 4—185 |
С медными жилами, с бумажной изоляцией, в свинцовой оболочке, бронированный стальной лентой, с наружным покровом из кабельной пряжи |
Для прокладки в земле |
|
СБГ |
1000 |
1 2 3 4 |
4-800 2,5-150 2,5-240 4—185 |
То же, голый, без покрова из кабельной пряжи |
Для прокладки внутри помещений, в тоннелях, каналах, лотках, по стенам |
|
АБ |
1000 |
3 4 |
6-120 6—95 |
С медными жилами, с бумажной изоляцией, в алюминиевой оболочке, бронированный стальной лентой, с наружным покровом из кабель- ной пряжи |
Для прокладки в земле. |
|
АБГ |
1000 |
3 4 |
6-120 6-S5 |
То же, голый, без покрова из кабельной пряжи |
Для прокладки внутри помещений, в тоннелях, каналах, |
|
ААБ |
1000 |
3 4 |
6-120 6-95 |
То же, но с алюминиевыми жила- ми и с наружным покровом из кабельной пряжи |
лотках, по стенам Для прокладки в земле |
|
ААБГ |
1000 |
3 4 |
6-120 6-95 |
То же, голый, без покрова из кабельной пряжи |
Для прокладки внутри помещений, в тоннелях, каналах, |
по своему характеру и назначению. Данные о некоторых из них,
наиболее употребительных в гастрономических и молочных магази-
нах, а также в учреждениях общественного питания, учебных заведе-
пнях и лечебных учреждениях, приведены в табл. 118—120.
§ 2. Расчет силовой сети
Выбор сечений проводов и кабелей по механической прочности
и допустимому току нагрузки для силовых сетей производится но
данным табл. 92—102.
Отклонение напряжения на зажимах электродвигателей от но-
'иинальпого, как правило, должно быть не более +/- 5%; в отдельных
случаях допускаются отклонения выше номинального до +10%.
При пуске мелких электродвигателей (мощностью до 5 квт) вхоло-
стую падение напряжения па зажимах в случае крайней необходи-
мости можно допустить до 15% номинального.
Присоединение электродвигателей и иных нагрузок (например,
перечисленных в табл. 118—120) к распределительной электрической
сети или к вводам в трансформаторные подстанции напряжением
380 в допускается при условии, если колебания напряжения при
включении их не будут превышать 2,5% номинального напряжении
сети. При числе включений менее 5 раз в сутки колебания не огра-
ничиваются.
. Определение потерн напряжения на участке сети, питающей
силовую нагрузку или смешанную (с преобладанием силовой — от-
дельно стоящие насосные, котельные и мастерские), можно произ-
вести по формуле

где S — нагрузка участка сети в тыс. ква;
l —длина линии в км;
U — напряжение сети в кв;
r — активное сопротивление проводов в ом/км;
х — индуктивное сопротивление в ом/км. Значения r и x: приве-
дены в табл. 121.
246 Глава VII. Силовое электрооборудование и силовые сети
|
Таблица 118 Мощность некоторых видов нагревательных приборов, машин и аппаратов |
|||
|
Наименование |
Тип |
Производитель- ность |
Мощность нагревателя или двигателя в квт |
|
Электроплита бытовая (квартирная) с жаровочным шкафом, с сигнализацией и автоматикой на 3 конфорки с нагрева- тельным элементом ........... |
ЭПК-311 |
. --- |
5,5 |
|
То же, без сигнализации и автоматнки, на 3 чугунные конфорки ......... |
ЭПК-310 |
--- |
5,1 |
|
Электроплита: плита ............... жаровочкый шкаф ......... |
ЭП-6 |
. --- --- |
5,5 2,2 |
|
Электроплита: плита ............... жаровочный шкаф . '. ....... |
ЭП-7 |
— --- |
9,8 2,8 |
|
Электроплита: плита ............... жаровочный шкаф ......... |
ЭП-4 |
— --- |
9,2 2,8 |
|
Электроплита: плита ..... . ......... жаровочный шкаф ......... |
ЭП-2М |
— |
27,5 4,5 |
Инновации: Менеджмент - Моделирование - Софт
- Инновационный менеджмент
- Разработка программного обеспечения
- Россия и инновации
- Управление инновационным менеджментом
- Моделирование
- Финансовое моделирование
- Системы моделирования
- Виды моделирования
- Практическое моделирование
- Пакет Mechanical Desktop
- Моделирование программ
- Софт для моделирования
- Пакет Simulink
- Моделирование в IBM
- MSC Nastran Моделирование -
- AutoCAD
- Unigraphics
- P-CAD